THE STACKED PAVILIONCOMPETITION, 2020
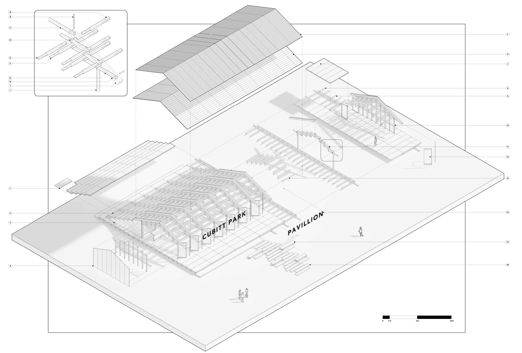
The design of the Cubit Park Pavilion explores ways of reducing the number of building components and material types. The intention is to create a structure which can be assembled and disassembled manually without producing waste. The structure is made of timber profiles of the same width and depth, stacked on top of each other. Cut to different lengths, these identical wooden components create the pavilion’s column and beam structural system.
